撈坑式斗式提升機-脫水提升機圖紙主要特點
文章作者:奧創機械發布時間:2020/4/13 15:16:55瀏覽次數:
脫水、撈坑斗式提升機簡介
脫水斗式提升機適用于輸送洗滌后的其他塊狀或顆粒狀的物料,物料在提升輸送過程中,可在重力作用下自行脫水。對于大塊物料及水分要求不太嚴格的產品,如跳汰分選作業的中煤、矸石可用脫水斗式提升機直接作為終脫水設備,。對粒度較細、或脫水不太容易、水分又要求比較嚴格的產品,脫水斗式提升機可作為初步脫水設備。如粗煤泥回收作業中,撈坑沉淀的煤泥可先經脫水斗式提升機初步脫水,再進一步用脫水篩和離心脫水機作終脫水。
脫水斗式提升機作為選煤廠常用的機械設備脫水斗式提升機其設計的自動化先進程度、結構布置方式、使用安全性、可靠性、連續性和高效運行將直接影響選煤廠生產成本。為此,應對其設計理論和方法進行研究探討,以便選擇合理的結構,節約生產成本。
脫水斗式提升機作為選煤廠常用的機械設備脫水斗式提升機其設計的自動化先進程度、結構布置方式、使用安全性、可靠性、連續性和高效運行將直接影響選煤廠生產成本。為此,應對其設計理論和方法進行研究探討,以便選擇合理的結構,節約生產成本。
L型撈坑式斗式提升機主要特點:
1,L型撈坑式斗式提升機結構緊湊,提升高度大,維護方便。
2,L型撈坑式斗式提升機運行平穩,脫水效果好。
3,L型撈坑式斗式提升機每米斗容量基本按等差級數遞增,有利于設備
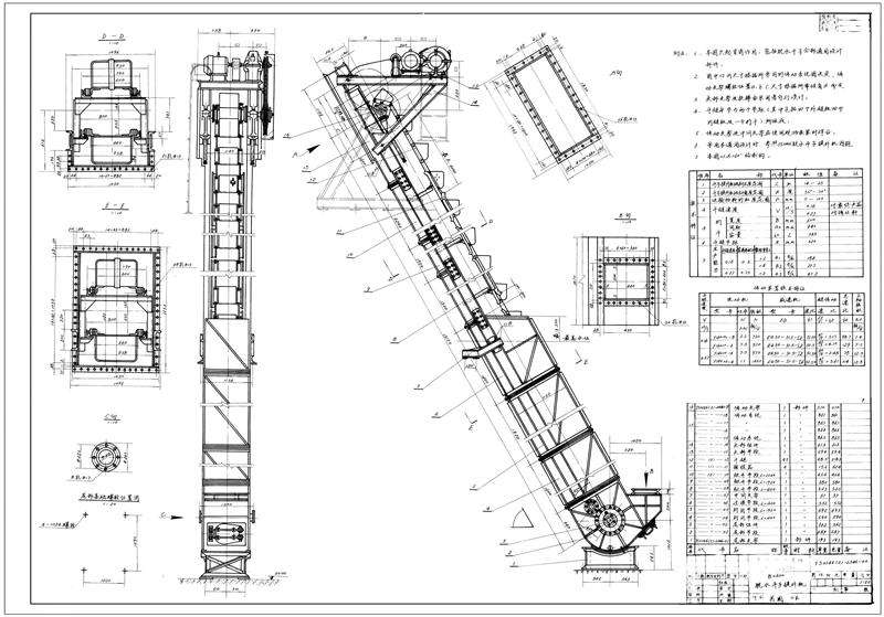
撈坑斗式提升機圖紙
撈坑斗式提升機型號
|
斗式提升機型號
|
大給粒度mm)
|
|
傾角(。)
|
大中心距(mm)
|
|
|
||||||||||||||||||||||||||||||||||||||||
|
脫水系列
|
T1825
|
50
|
60
|
9955
|
7
|
10
|
Y132S-4
|
5.5
|
||||||||||||||||||||||||||||||||||||||
|
T2532
|
12000
|
9
|
18
|
Y132M-4
|
7.5
|
|||||||||||||||||||||||||||||||||||||||||
|
T3240
|
100
|
55-70
|
19840
|
19
|
32
|
Y160M-4
|
11
|
|||||||||||||||||||||||||||||||||||||||
|
T3260
|
28
|
48
|
Y160L-4
|
15
|
||||||||||||||||||||||||||||||||||||||||||
|
T4060
|
22800
|
36
|
60
|
Y180M-4
|
18.5
|
|||||||||||||||||||||||||||||||||||||||||
|
T4080
|
48
|
80
|
Y180L-4
|
22
|
||||||||||||||||||||||||||||||||||||||||||
|
T40100
|
60
|
100
|
Y200L-4
|
30
|
||||||||||||||||||||||||||||||||||||||||||
|
T50100
|
25750
|
75
|
126
|
Y225M-4
|
45
|
|||||||||||||||||||||||||||||||||||||||||
斗式提升機廠家提示:請通過正規渠道購買奧創斗式提升機,以保障您的合法權益!
訂購網址請登錄河南奧創機械有限公司官方網站:www.konkaa.cn 24小時服務熱線:13353676726


